Wohnung SP
Dieses Projekt umfasste die umfassende Renovierung einer charmanten Altbauwohnung, bei der historischer Charakter und moderner Wohnkomfort in Einklang gebracht wurden. Von Beginn an stand die behutsame Weiterentwicklung des Bestands im Fokus – mit viel Liebe zum Detail und einem klaren Blick für zeitgemäße Wohnbedürfnisse.
Die komplette Elektroinstallation wurde erneuert und mit einer modernen, stimmungsvollen Lichtplanung kombiniert. Gleichzeitig erfolgte eine HLS-Planung (Heizung, Lüftung, Sanitär) auf dem neuesten technischen Stand, um Effizienz und Komfort langfristig zu sichern.
Die Böden wurden mit hochwertigem Parkett neu ausgestattet, das den Wohnräumen eine warme und elegante Atmosphäre verleiht.
Ein integriertes Sound System mit unsichtbaren Lautsprechern sorgt für ein beeindruckendes Klangerlebnis, ohne das harmonische Erscheinungsbild zu stören.
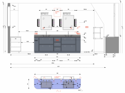
Die Nassbereiche – Badezimmer und WC – wurden vollständig neu konzipiert und hochwertig ausgeführt. Eine integrierte Sauna und eine komfortable Dusche schaffen nun einen privaten Wellnessbereich in den eigenen vier Wänden.
Darüber hinaus wurden ein funktionaler Hauswirtschaftsraum, ein elegantes Schlafzimmer und ein Sportraum geplant und umgesetzt – abgestimmt auf die individuellen Bedürfnisse der Bewohner.
Ein besonderes Augenmerk lag dabei auf dem Erhalt des ursprünglichen Altbau-Flairs: Wo möglich, wurden originale Türen sorgfältig aufgearbeitet und in das moderne Design integriert.
Durch präzise Planung und die enge Abstimmung aller Gewerke entstand ein Wohnkonzept, das die historische Substanz bewahrt und gleichzeitig höchsten funktionalen Ansprüchen gerecht wird – ein Zuhause mit Seele und Zukunft.
LeistungEntwurf, Planung und UmsetzungJahr2025OrtMünchenPartnerFotos: Manuel Pallhuber



















































